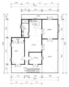
Floorplan & visualising new spaces

” The first big step is underway. The draftsman has been out to measure the house a few weeks ago. I’ve finally got a look at the layout and the real sizes of the spaces. With these dimensions I can start visualising the new spaces I’m going to create.

It’s a big day!

I’ve always loved a floor plan and I’m thrilled to start playing around with the initial draft. Moving walls, doors and windows around to maximise the spaces.

One of the reasons I decided on this particular cottage is that it is feasible to add a verandah down the entire western side. I’ll create an indoor/outdoor living room here to take advantage of the north and west views.”

All Rights Reserved. © Fiona Harper